Product / BRD
BRD – Pressure-relief damper
Halton BRD pressure-relief dampers are used in offshore, marine and industrial applications to regulate the pressure in the ductwork system.
Overview
- Fixed frame in painted, galvanized or stainless steel. Blades of galvanized or stainless steel.
- Models for horizontal or vertical upward airflow installation
- Blades contain silicone seal to lower the leakage through blades
- Available as ATEX/IECEx certified
- Leakage class (EN1751:2014) of closed damper up to class 2. Contact Halton for more details.
- Blades linked and open in parallel
- Opening pressure adjusted by changing the position of counterweight(s)
- Opening pressure can be adjusted up to 300 Pa. For higher opening pressure, contact Halton Marine
- Minimum opening pressure between 30 Pa and 200 Pa depending on damper size
- Counterweights included
- Standard construction places weights on the right hand side, weights on the left hand side available as an option
- Final adjustment of counterweights carried out during commissioning onsite
- Maximum duct pressure for damper construction 5000 Pa and maximum air velocity 15 m/s. In case of high duct pressure, contact Halton Marine for finding the most suitable solution
- Temperature operation range up to +100°C, optionally up to +180°C
Dimensions and Material Thickness
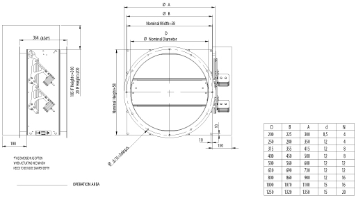
BRD pressure relief dampers meet international standards for both rectangular (width B 150-1200 mm and height H 150-1400 mm, 1 mm division) and circular ducts (Ø100 – 1250 mm). Non-standard dimensions are available on request. Standard flange width 27 mm. Flanges and drilling also available according to ISO 15138 standards. Modular construction sizes up to 2400×2800 mm are available. Standard frame material thickness 3 mm. Blades are made of two sheets, each of being 0.8 mm thick (sandwich design).
BRD, general drawings

With circular connections

BRD circular, with connection flanges

Material and Finishing
| PART | MATERIAL | FINISHING |
| Frame | Carbon steel | Painted or galvanized |
| Frame | Stainless steel EN 1.4301 (AISI304), EN 1.4404 (AISI316L), EN 1.4432 (AISI316L) | – |
| Blades | Steel | Galvanized |
| Blades | Stainless steel EN 1.4301 (AISI304), EN 1.4404 (AISI316L), EN 1.4432 (AISI316L) | – |
| Maintenance-free bearings | Stainless steel EN 1.4404 (AISI316L) / Option: bronze bearings available | – |
| Shafts | Stainless steel EN 1.4404 (AISI316L) | – |
Standard frame material thickness 3 mm.
Blades are made of two sheets, each of being 0.8 mm thick.
Product Models and Accessories
- Models for horizontal and vertical installation available.
- Circular connection pieces are available.
- Standard construction places weights on the right hand side. Weights on the left hand side available as an option.
Operation Principles
Pressure-relief damper will allow one-way pressure relief in the ductwork. This feature is based on imbalanced blades. When the pressure in the duct rises above selected value (from 30 Pa to 150 Pa, up to 300 Pa optionally) the damper blades open to allow pressure relief. For higher opening pressure, contact Halton Marine. The minimum opening force can be adjusted with weights. When the pressure in the ductwork drops below minimum opening force required, the blades close and seal the duct.
Weights
Weights of standard Halton BRD dampers (kg). Frame thickness 3 mm.
| H/HEIGHT
(mm) |
B / WIDTH (mm) | |||||||||||
| 150 | 200 | 300 | 400 | 500 | 600 | 700 | 800 | 900 | 1000 | 1100 | 1200 | |
| 150 | 8 | 9 | 11 | 13 | 15 | 16 | 18 | 20 | 22 | 24 | 25 | 27 |
| 200 | 10 | 12 | 12 | 14 | 16 | 19 | 20 | 22 | 24 | 26 | 28 | 29 |
| 300 | 12 | 13 | 15 | 18 | 20 | 21 | 24 | 26 | 29 | 31 | 34 | 35 |
| 400 | 14 | 15 | 18 | 20 | 23 | 25 | 28 | 30 | 33 | 36 | 37 | 40 |
| 500 | 17 | 17 | 21 | 24 | 27 | 29 | 32 | 35 | 37 | 40 | 43 | 45 |
| 600 | 19 | 20 | 24 | 26 | 29 | 32 | 36 | 39 | 42 | 45 | 47 | 51 |
| 700 | 21 | 23 | 26 | 30 | 33 | 37 | 40 | 43 | 47 | 50 | 53 | 57 |
| 800 | 22 | 24 | 27 | 33 | 36 | 40 | 43 | 47 | 51 | 54 | 58 | 62 |
| 900 | 26 | 28 | 32 | 36 | 39 | 44 | 48 | 52 | 56 | 60 | 63 | 67 |
| 1000 | 28 | 30 | 34 | 39 | 43 | 48 | 51 | 55 | 60 | 64 | 68 | 72 |
| 1100 | 31 | 33 | 38 | 42 | 47 | 51 | 56 | 60 | 65 | 70 | 72 | 78 |
| 1200 | 33 | 35 | 40 | 45 | 50 | 54 | 59 | 64 | 69 | 74 | 78 | 84 |
| 1300 | 36 | 38 | 44 | 48 | 53 | 58 | 64 | 69 | 74 | 79 | 83 | 89 |
| 1400 | 38 | 40 | 46 | 51 | 56 | 62 | 67 | 73 | 78 | 83 | 88 | 94 |
| D2 ØD | WEIGHT |
| mm | kg |
| 100 | 12 |
| 160 | 12 |
| 200 | 15 |
| 250 | 17 |
| 315 | 21 |
| 400 | 26 |
| 500 | 36 |
| 630 | 45 |
| 800 | 63 |
| 1000 | 87 |
| 1250 | 116 |
The above stated weights include counter weights.
Installation
Installation on wall or roof.
At wall installation the blade orientation must always be in horizontal plane.
Copies of Installation, Operation and maintenance manuals are available from Halton Marine Sales offices and distributors.
Product Code
(S)=Shape of Connection
(A) Circular (D1)
(B) Circular (D1) outlet
(C) Circular (D2)
(R) Rectangular
(W)=Width
Min=150 mm
Max=1200 mm
(H)=Height
Min=150 mm
Max=1400 mm
(D)=Diameter
Min=100 mm
Max=1250 mm
(SF)=Flange Option
(H0) Connection flange in circular connections
(H1) Connection + loose flange in circular connections
(HA) Flanges (2 sides)
(HB) Counter flanges (2 sides)
(HC) Counter flange (1 side)
(N0) (N0) ISO 15138 flange drilling CO+CIR
(N1) ISO 15138 flange drilling CO+LO+CIR
(NA) Not Assigned (circular connection)
(NR) ISO 15138 flange drilling
(DF)=Deep Frame Model
(N) No
(Y) Yes
(LM)=Left Hand Model
(N) No
(Y) Yes
(CW)=Counter Weights Included
(Y) Yes
(MA)=Material Blades
(AS) Stainless steel 0.8 mm EN1.4404
(CS) Carbon steel 0.75 mm
(LS) Stainless steel 0.8 mm EN1.4432
(SS) Stainless steel 0.8 mm EN1.4301
(FM)=Frame Material
(A3) Stainless steel 3 mm EN1.4404
(C3) Carbon steel 3 mm EN1.4404
(L3) Stainless steel 3 mm EN1.4432
(S3) Stainless steel 3 mm EN1.4301
(FI)=Finishing
(HG) Hot galvanized
(NA) Not Assigned (acid treatment)
(PN) Painting
(BM)=Bearing Material
(BR) Bronze
(AS) Stainless steel EN1.4404
Code example
BRD/R-150-150,SF=HA,DF=N,LM=N,MA=CS,FM=C3,FI=HG,BM=AS,ZT=N